

轻轨穿楼而过,缆车横跨江河火锅的沸腾与码头的汽笛交织成独特的城市交响在长江与嘉陵江交汇处重庆用立体的街巷编织着魔幻现实
在这片热闹非凡中人们推开家门的瞬间渴望的不只是物理屏障更是能卸下疲惫的温柔结界


重庆铜梁新豪轩门窗展厅,设计师用颇具浪漫的线条语言,重构生活哲学,将冰冷的建材卖场蜕变为有温度的家庭剧场,让每扇门窗都成为内与外、闹与静、冷与暖的重要纽带。 走进铜梁新豪轩门窗,解密展厅设计背后的初衷,一起探寻工业美学与人文关怀交融的美好。

项目名称:重庆铜梁居然店
门店面积:近300㎡门店地点:重庆市铜梁区东城街道财富广场东路88号居然之家3楼客群定位:精准锚定对生活品质,有高要求,对家居舒适度极为重视的客户群体设计需求:以大空间、大产品为设计导向,通过布局开阔空间展示门窗产品,打造温暖、舒适的家居体验

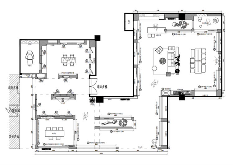
「▲设计平面图」

明暗相称,八方来客;品牌聚焦,抢占心智。重庆铜梁新豪轩门店的外立面,采用全新SI系统,简约大气的设计风格宛如一位低调却散发独特魅力的绅士。冲孔铝板作为“外衣”,简约大气的纹理好似精心编织的锦缎,细腻而不失质感。

全景推拉窗和大视野的测压窗,占据外立面核心主要位置,犹如明亮的大眼睛,毫无保留地将店内精心陈列的门窗产品展现给外界。光线毫无阻碍地透过窗洒入店内,仿佛为门店注入了鲜活的生命力,营造出一个轻盈、活力四溢且层次丰富的体验空间。



踏入店内,内部设计尽显巧思,闪银灰铝塑板墙面在灯光下泛冷调光泽,简约高级。情景体验空间内,绿植错落,搭配精心挑选的沙发、茶几等软装,温馨氛围扑面而来。



再往店内深入,开阔的大空间里,通透且高颜值的门窗产品有序陈列,每一扇都散发着独特魅力。新豪轩门窗因地制宜,针对重庆夏季炎热、冬季湿冷的气候特点,打造微气候展厅,其良好的密封性既能阻挡夏日暴雨侵袭,又能在冬季有效锁温,为家营造出舒适的氛围。

店内的迂回动线设计十分巧妙,自然引导顾客前行,沿途能体验到门窗开合顺滑、隔音隔热效果出色,真切感受产品优质,沉浸在愉悦的选购之旅中。


步入东边区域,客餐厅、水吧、儿童区与洽谈区巧妙融合,呈现出一派浓郁的生活气息。

这里主要展示推拉窗与推拉门产品。推拉窗是冬日暖阳的“搬运工”,即便重庆冬季寡照,也能将充足自然光引入室内,驱散湿冷;推拉门则是夏日清凉的“营造者”,全开后穿堂风呼啸,闷热感一扫而空。


顾客可以在这个模拟的生活场景中,想象未来家中的惬意时光。水吧为顾客提供片刻休憩之所,儿童区传来的欢声笑语,洽谈区的轻声交流,共同构成了一幅温馨的画面。

西边区域则营造出闲适宁静的氛围。饮茶区、设计区和休息区依次排列,平开门、生态门以及独具特色的入户门陈列其中。


其中入户门融合传统工艺与现代科技,中式雕花庄重典雅。针对重庆潮湿气候,其材质经过特殊防潮处理,长久使用也不易变形、生锈。它不仅是家的门面担当,更以出色的安全性能,为家遮风挡雨,每一次开启,都仿佛开启一段温暖的归家旅程,完美诠释了功能与美学的共生演绎。



重庆,这座城市永远热气腾腾、永远喧嚣热烈。而铜梁新豪轩门窗,凭借一扇扇饱含温度的门窗,为人们隔绝外界纷扰,守护家的温馨。在这里,门窗不再只是冰冷的建材,而是连接喧嚣与安宁的桥梁,让每一个家都能在繁华都市中,拥有独属于自己的静谧与温暖,成为心灵的避风港。

