现代法式
让人着迷之处在于
空间整体简约之下
细节却藏着别有用心的精致
总能给空间带来不期而遇的惊喜
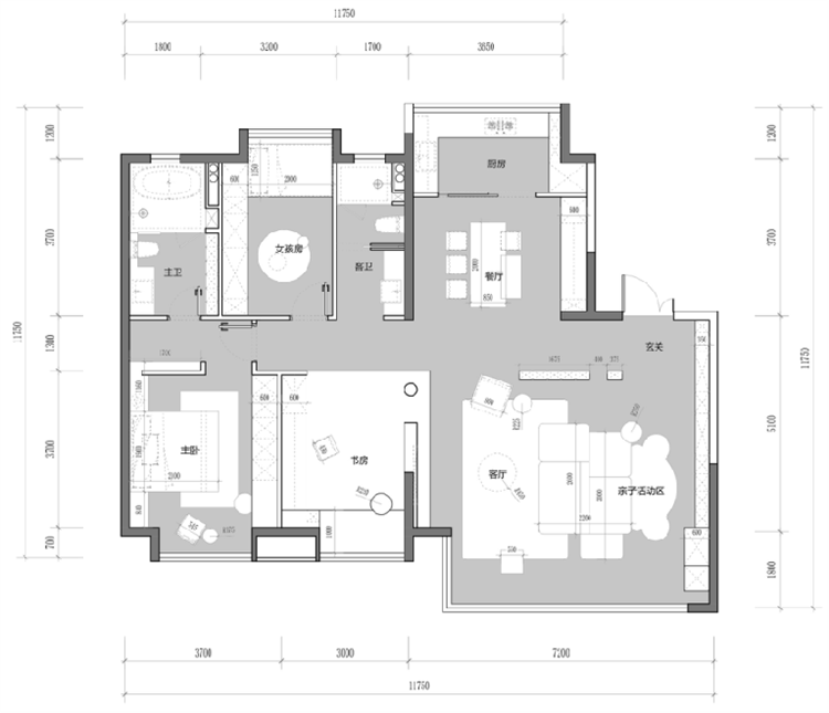
本期为大家带来一套现代法式奶油风案例,全屋以经典暖白奠定法式基调,并采用功能重组的设计理念,优化空间动线及收纳功能,为屋主打造具有新时代年轻感的法式新家。

项目地址丨长沙市·华远碧桂园海蓝城
户型面积丨三室两厅一厨两卫140㎡
设计风格丨法式奶油风
产品系列丨爱乐之城系列
产品门型丨AY02
所用颜色丨暖白
所用材质丨玛格F☆☆☆☆颗粒免漆板

LivingRoom
沙发为轴,探索家的更多可能

开放式客厅搭配四面都能坐人的小岛沙发,让客厅空间同时具备多重家居功能,屋主可根据场景需求随意切换生活模式。


看似简约的电视背景墙,以精致的石膏线雕花装饰,与之平行的圆型立柱则在视觉上起到扩大背景墙体块的效果,镂空的设计也增加了空间趣味性。


沙发的另一面是亲子互动区。通顶的定制柜可摆放书籍、玩具和装饰品;会客区与亲子区以沙发为轴线,彼此连通又保持独立,互不干扰,各得其乐。
02
StudyRoom
地面抬高,承托家的松弛感

利用抬高木地板将客厅与书房进行空间划分;开放式设计让客厅与书房享有同一片阳光和通风。

封闭与开放相结合的书柜提供各种储物方式;暖灰银梨背板自带温度;飘窗改造的榻榻米让伏案久后有片休息的地方。
03
DiningRoom&Kitchen
餐厨联动,功能聚合更便捷

餐厅紧邻厨房,能有效缩短活动动线,减少餐汁油污影响范围;餐边柜留出操作台放小家电,解放厨房操作面积;玻璃弱化吊柜的体积感,营造轻盈感。

U型厨房活动动线流畅,上下暖白柜体视觉放大厨房空间;厨房薄柜美化烟管道同时增加储物容量,开放格放调味品随手可拿。


04
MasterBedroom
解构空间重塑私密套房

主卧延续客厅的优雅白,法式护墙搭配岩板打造浪漫床头背景;大地色搭配局部低明度粉调软装自带治愈能力。

一字型入墙衣柜,满足不同的收纳需求;梳妆台临窗设计,自然光充足,更有利于打造精致妆容;开敞格具有强烈展示性,柜内饰品一目了然。

05
Children'sRoom
童趣设计,呵护纯真童年

儿童房打造床柜一体榻榻米,充分发挥小空间的收纳潜力;下置的开放格满足孩子的收纳习惯,圆球状把手童趣且更安全。

一个温馨的家,不仅要考虑空间的收纳、功能与颜值,更在乎屋主居于其中所能感受到的愉悦与放松。现代法式的高颜值与浅浅的浪漫总能第一眼就俘获屋主的心。你又喜欢什么装修风格呢?欢迎评论区留言互动~
